Beschrijving
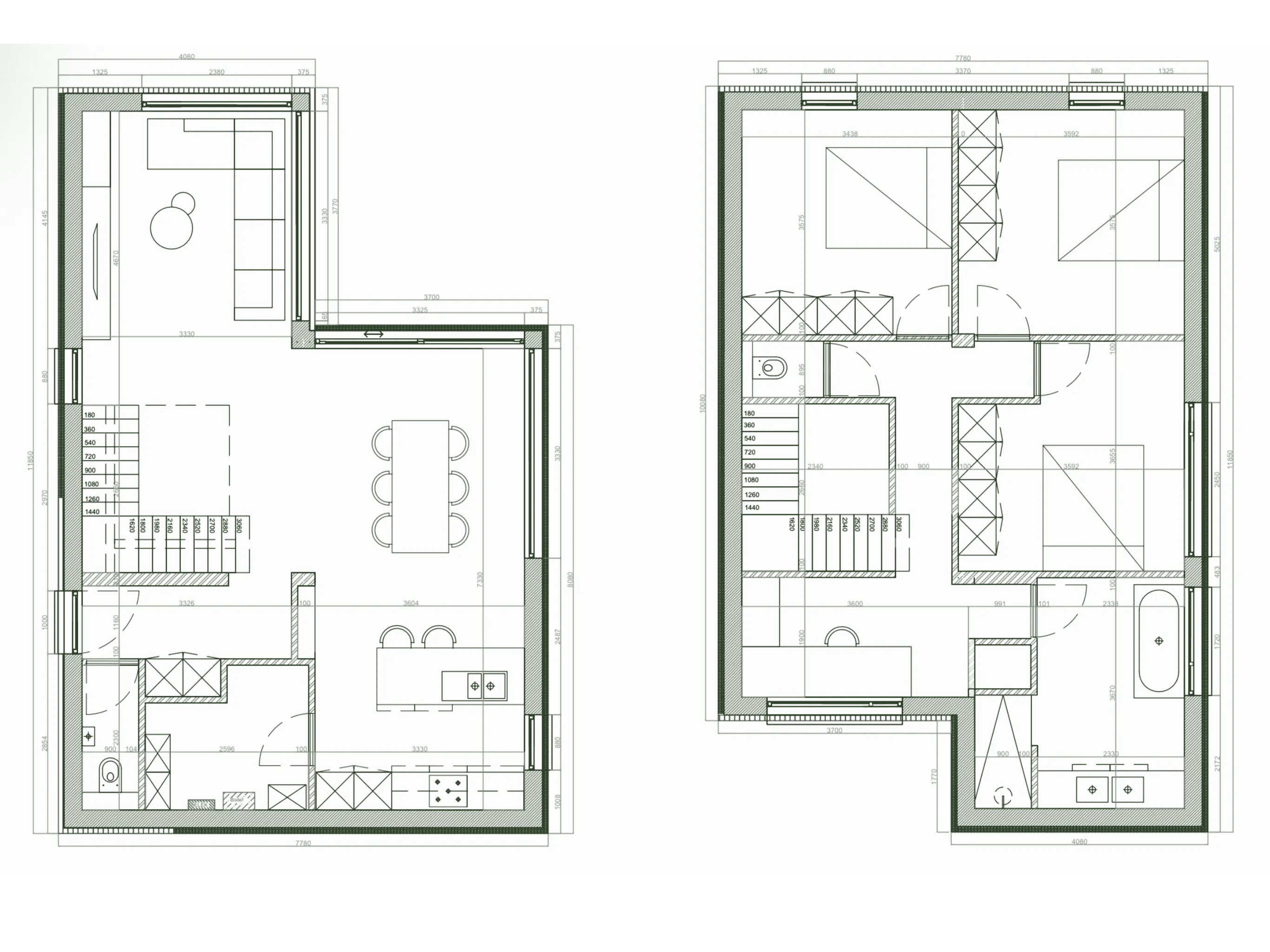
Deze moderne woning combineert ruimte, licht en comfort met een praktische indeling. Met drie slaapkamers, een badkamer en twee aparte toiletten is ze perfect geschikt voor een comfortabel gezinsleven. De ruime leefruimte met open keuken vormt het hart van de woning. Kamerhoge ramen zorgen voor veel natuurlijk licht en een directe verbinding met de tuin en het overdekte terras. Ideaal om te ontspannen en te genieten.

Details
Buitenoppervlakte
157 m2
Slaapkamers
3
Bewoonbaar opp.
136 m2
Badkamers
1
BEN-woning
Ja
Toiletten
2
Plafondhoogte NIV0
254 cm
Plafondhoogte NIV1
250 cm
Eigenschappen
Ook de uitrusting is doordacht gekozen. In de badkamer vind je een ligbad, inloopdouche en een dubbele wastafel. Daarnaast zijn er twee afzonderlijke toiletten in de woning. Keuken, badkamer en sanitair worden afgewerkt volgens een duidelijke klanten offerte, rechtstreeks van de leverancier. Met Niko Home Control bedien je verlichting en technieken eenvoudig en slim.
Op vlak van duurzaamheid is deze woning volledig mee met vandaag én morgen. Verwarming gebeurt via een monobloc warmtepomp met Unitower in combinatie met vloerverwarming. Ventilatie type D zorgt voor een gezond en stabiel binnenklimaat. Met aluminium ramen en deuren is deze woning energiezuinig en toekomstgericht gebouwd. Er is ook de optie om 14 zonnepanelen van 440 W te plaatsen.
Een huiselijke, ruime gezinswoning die comfort en energiezuinigheid combineert, met de zekerheid van Hubley.
Technische specificaties
Verwarming
Warmtepomp
Ventilatie
Type D
Zonnepanelen
Optioneel
Ramen & deuren
Aluminum
Domotica
Niko Home Control
Vloerverwarming
Ja
Gevelafwerkingen



Interieurinspiratie















