Beschrijving
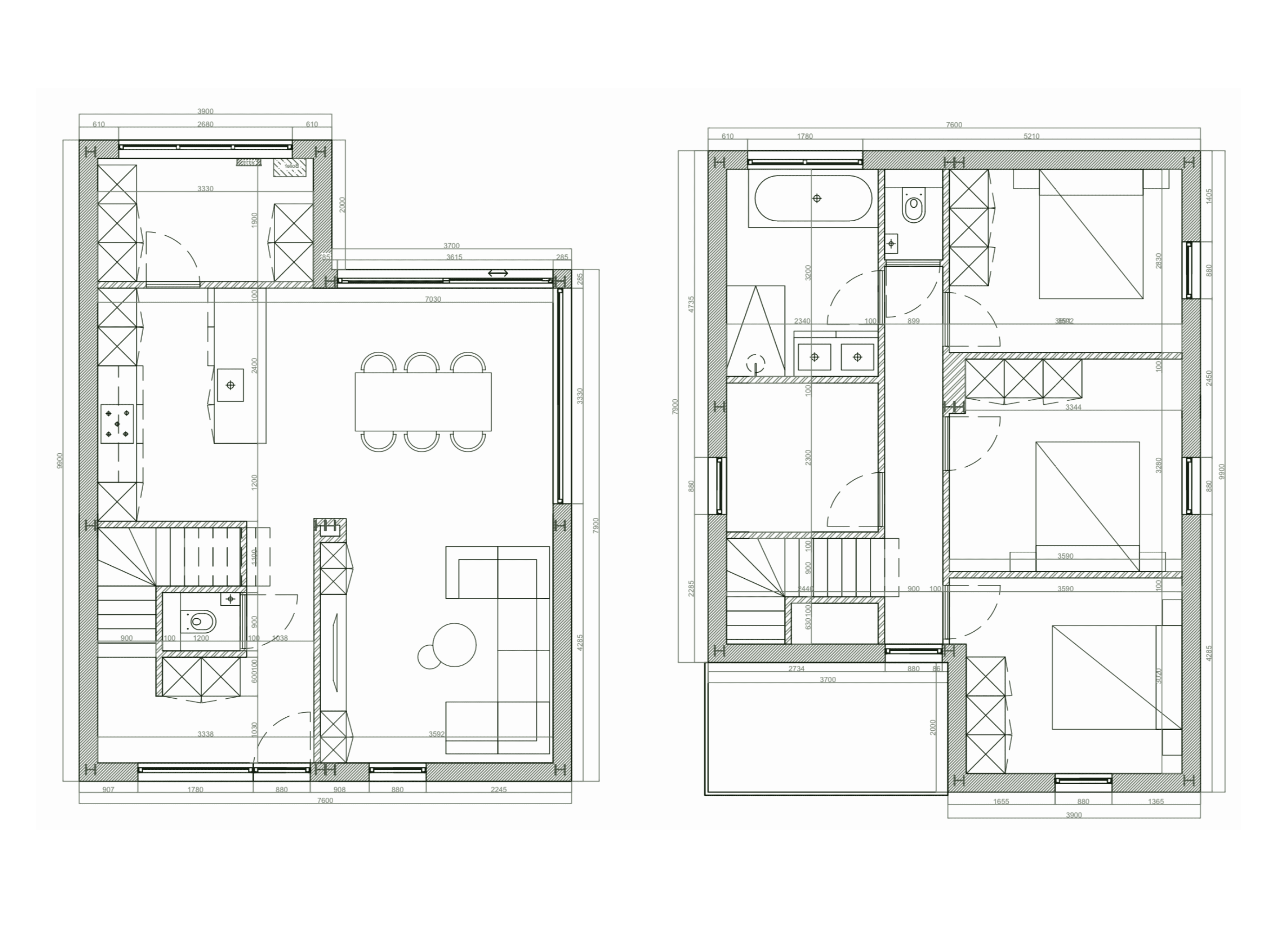
De woning overtuigt met een doordachte functionele indeling die perfect inspeelt op het ritme van een modern gezinsleven. Met drie volwaardige slaapkamers, twee aparte toiletten, een badkamer met ligbad en een inpandige berging is aan comfort geen gebrek. De grote raampartijen doen de grens tussen binnen en buiten vervagen en zorgen voor een aangename lichtinval. De L-vormige leefruimte en de open keuken vloeien harmonieus in elkaar over. Aansluitend aan de keuken is er een praktische bergruimte. Een warme gezinswoning, gebouwd met de vertrouwde kwaliteit en zekerheid van Hubley. Zet de woning volledig naar jouw hand met een interieurontwerp op maat.

Details
Buitenoppervlakte
136 m2
Slaapkamers
3
Bewoonbaar opp.
117 m2
Badkamers
1
BEN-woning
Ja
Toiletten
2
Plafondhoogte NIV0
254 cm
Plafondhoogte NIV1
250 cm
Eigenschappen
Ook de uitrusting is doordacht gekozen. In de badkamer vind je een ligbad, inloopdouche en een dubbele wastafel. Daarnaast zijn er twee afzonderlijke toiletten in de woning. Keuken, badkamer en sanitair worden afgewerkt volgens een duidelijke klanten offerte, rechtstreeks van de leverancier. Met Niko Home Control bedien je verlichting en technieken eenvoudig en slim.
Op vlak van duurzaamheid is deze woning volledig mee met vandaag én morgen. Verwarming gebeurt via een monobloc warmtepomp met Unitower in combinatie met vloerverwarming. Ventilatie type D zorgt voor een gezond en stabiel binnenklimaat. Met aluminium ramen en deuren is deze woning energiezuinig en toekomstgericht gebouwd. Er is ook de optie om 14 zonnepanelen van 440 W te plaatsen.
Een huiselijke, ruime gezinswoning die comfort en energiezuinigheid combineert, met de zekerheid van Hubley.
Technische specificaties
Verwarming
Warmtepomp
Ventilatie
Type D
Zonnepanelen
Optioneel
Ramen & deuren
Aluminum
Domotica
Niko Home Control
Vloerverwarming
Ja
Gevelafwerkingen


Interieurinspiratie









