HUB128
Excl BTW
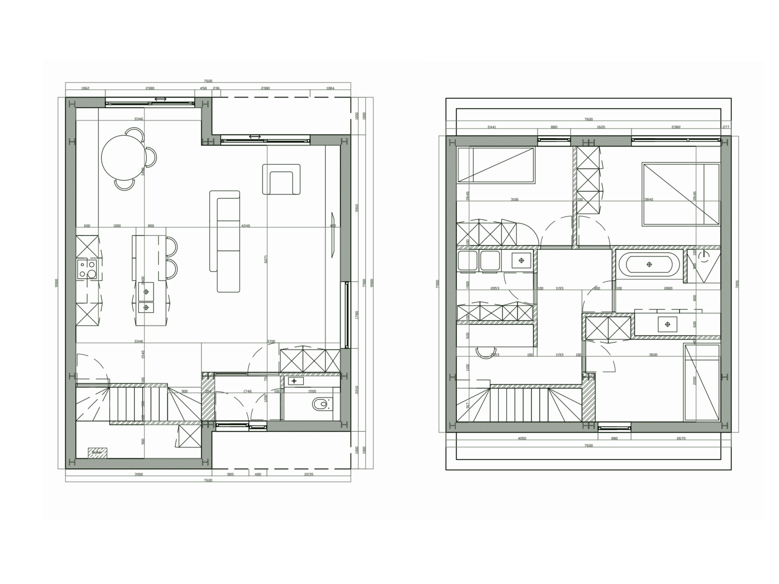
Samenvatting
Slaapkamers
3
Badkamers
1
Bewoonbare Oppevlakte
110
m²

Beschrijving
De signatuur van de architect is duidelijk herkenbaar in deze creatie, die fris en speels aanvoelt zonder aan kwaliteit in te boeten. Door middel van subtiele verschuivingen van standaardmodules ontstaat telkens opnieuw een creatief en tijdloos geheel. Verfijnde toevoegingen, zoals weloverwogen materiaalkeuzes, geven het ontwerp dynamiek en de nodige pit. Tegelijk staat de doordachte opbouw garant voor duurzaamheid en efficiëntie, met een hoogwaardig eindresultaat.

Details
Buitenoppervlakte
128 m2
Slaapkamers
3
Bewoonbaar opp.
110 m2
Badkamers
1
BEN-woning
Ja
Toiletten
1
Plafondhoogte NIV0
254 cm
Plafondhoogte NIV1
254 cm
Eigenschappen
Keuken, badkamer en sanitair worden afgewerkt volgens een duidelijke offerte, rechtstreeks van de leverancier. Met Niko Home Control bedien je verlichting en technieken eenvoudig en slim. Op vlak van duurzaamheid is deze woning volledig mee met vandaag én morgen. Verwarming gebeurt via een lucht-water warmtepomp met Unitower in combinatie met vloerverwarming. Ventilatiesysteem D zorgt voor een Details gezond en stabiel binnenklimaat. Met aluminium ramen en deuren is deze woning energiezuinig en toekomstgericht gebouwd. Zo creëren we energie-efficiënte woningen (sterk verlaagd E-peil) met gegarandeerde woonkwaliteit en toekomstwaarde. Er is ook de optie om zonnepanelen te plaatsen.
Technische specificaties
Verwarming
Lucht-water warmtepomp
Ventilatie
Type D
Zonnepanelen
Optioneel
Ramen & deuren
Aluminium
Domotica
Niko Home Control
Vloerverwarming
Ja
Contact

CATROLLE ARCHITECTEN
Handzameplein 1, 8610 Handzame
Telefoonnummer