HUB123
Excl BTW
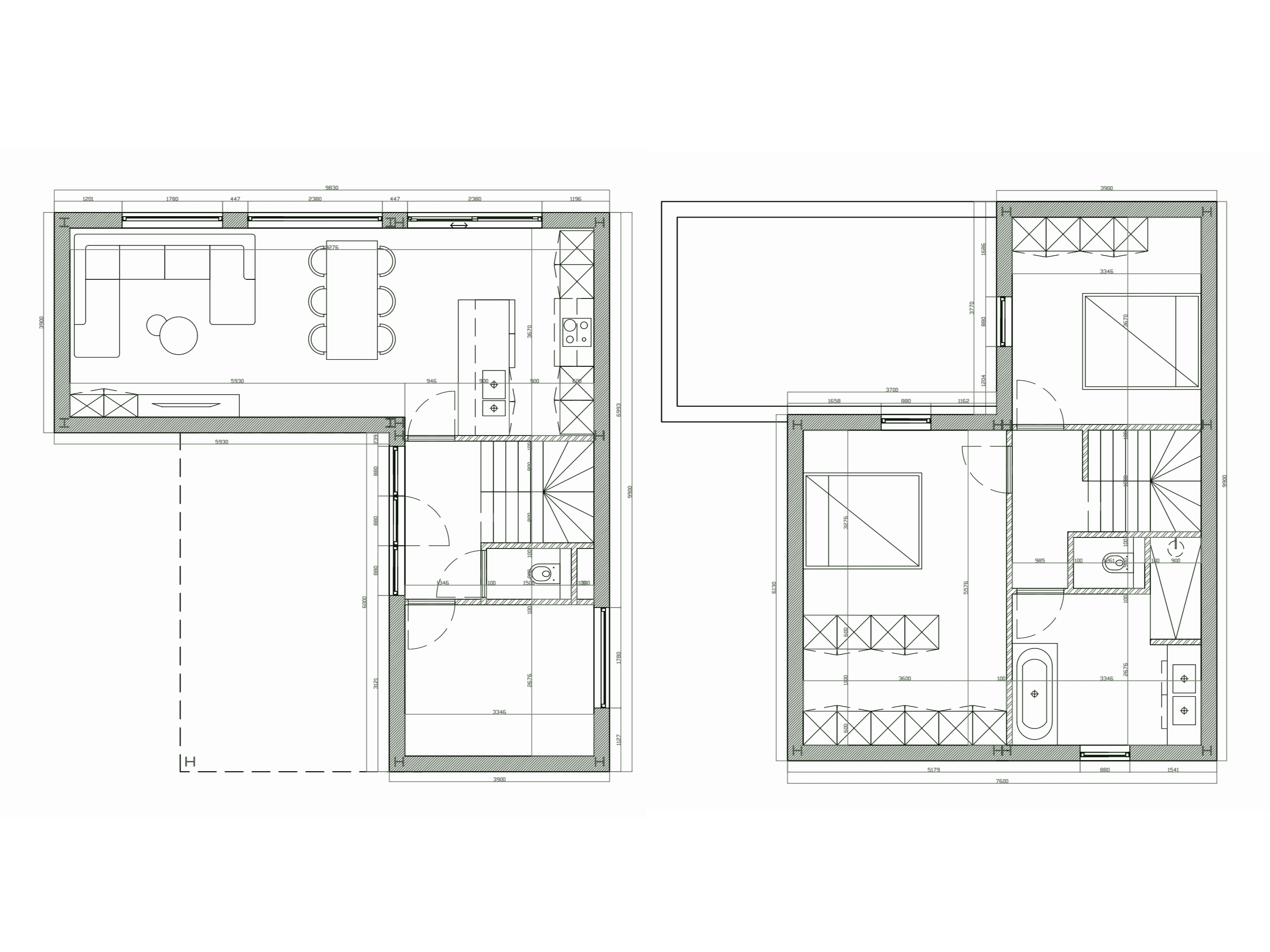
Samenvatting
Slaapkamers
2
Badkamers
1
Bewoonbare Oppevlakte
103
m²

Beschrijving
Dankzij het extra verdiep in dit ontwerp wint de woning aan ruimte en mogelijkheden. De strakke hedendaagse architectuur met grote raampartijen benadrukt het modern karakter en laat de woning in natuurlijk licht baden. Binnen en buiten lopen harmonieus in elkaar over, waardoor de tuin een volwaardig deel wordt van het wooncomfort. Dit versterkt het gevoel van rust, openheid en dagelijks woonplezier.

Details
Buitenoppervlakte
123 m2
Slaapkamers
2
Bewoonbaar opp.
103 m2
Badkamers
1
BEN-woning
Ja
Toiletten
2
Plafondhoogte NIV0
254 cm
Plafondhoogte NIV1
254 cm
Eigenschappen
Keuken, badkamer en sanitair worden afgewerkt volgens een duidelijke offerte, rechtstreeks van de leverancier. Met Niko Home Control bedien je verlichting en technieken eenvoudig en slim. Op vlak van duurzaamheid is deze woning volledig mee met vandaag én morgen. Verwarming gebeurt via een lucht-water warmtepomp met Unitower in combinatie met vloerverwarming. Ventilatiesysteem D zorgt voor een Details gezond en stabiel binnenklimaat. Met aluminium ramen en deuren is deze woning energiezuinig en toekomstgericht gebouwd. Zo creëren we energie-efficiënte woningen (sterk verlaagd E-peil) met gegarandeerde woonkwaliteit en toekomstwaarde. Er is ook de optie om zonnepanelen te plaatsen.
Technische specificaties
Verwarming
Lucht-water warmtepomp
Ventilatie
Type D
Zonnepanelen
Optioneel
Ramen & deuren
Aluminium
Domotica
Niko Home Control
Vloerverwarming
Ja
Contact
I.D.P.-assist
Vredestraat 53, 9500 Geraardsbergen
Telefoonnummer
Gevelafwerkingen






Interieurinspiratie

